您当前所在的位置: 首页 > 新闻中心 > 公司新闻

新闻中心

News

分类>>

爱游戏AYX体育,®大华梧桐樾官网◈大华梧桐樾售楼处发布:大华梧桐樾开启认购

2025-06-23 11:34:03
浏览次数:
返回列表

  打造的第五代梧桐系城墅作品,旨在赋新大华高端城墅版图,迭新嘉定墅居享受,开篇一座嘉定城的新传奇。

  因地制宜利用天然河道精心布局。项目被新开河、苏州河双河流环绕,静谧水岸带来天然诗意与自然气息,丰盛的滨河景观与建筑融为一体,还生活以最自然灵动的本真。

  主题儿童乐园、鲲鹏书院、老人颐乐空间、多元艺术花园、约760m“汽车文化”主题跑道、森林漫步道等共享场域为居者构筑一个有温度的社区。

  上海嘉定大华梧桐樾售楼处电话:建筑采用现代美学立面,简约潮流,彰显城市精英的风范。窗棱格构的设计别具一格,打破了室内外界限的同时,带来充裕的采光和更好的景观视野。

  上海嘉定大华梧桐樾售楼处电话:社区内打造多重绿化体系、让四季皆有景可赏的同时,丰富运动空间、营造亲近自然的健康生活,给业主带来归家的温馨感。

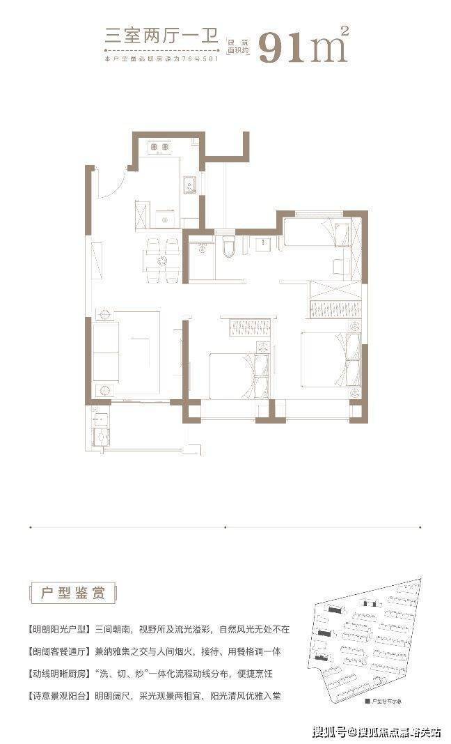
  上海嘉定大华梧桐樾售楼处电话:项目以高层产品享受墅级品质,诠释虹桥高阶住宅风范。墅质高层大面宽、多飘窗、全明通透格局。所有房源全部装修交付,带来兼具功能与高尔夫视野的高舒适度空间,同时满足不同家庭的居住需求。

  三开间朝南+双朝南卧室带飘窗+动静分离+卫生间干湿分离,这样的三房设计,对于上海首套置业购房者来说,非常友好,未来想要做置换,也比较容易出手。

  空间的设计省去了多余的过道,餐客厅一体,三房户型,可以满足新婚家庭到三口之家的升级,还能拥有一间独立书房,后期配置榻榻米,也可灵活用作客房,功能性非常完备。大华·梧桐樾售楼处电话:大华梧桐樾官方电话:

  上海嘉定大华梧桐樾售楼处电话:室内采光和通风都相当出彩;每一间卧室都配了飘窗,拓宽景观视野,提升实际使用面积;卫生间干湿分离,大幅提升居住舒适度。

  a、房地产位置的固定性(土地不可移,房屋也不可动);b、房地产地域的差别性(每宗房地产的价值都不同);

  a、功能用途:居住用房(小区、高品住宅)、工业用房(厂房、仓库)、商业用房(门面、商场)、办公用房(写字楼)、行政用房(军事、学校等单位用房及城市);b、建筑结构:钢结构、钢筋混凝土结构、砖混结构、砖木结构和其他;

  c、用途:居住用地、商业服务用地、工业用地、仓储用地、市政公共设施用地、交通用地、绿化用地、特殊用地等;

  就是土地所有者根据土地分类对土地加以利用的权利(指依法对土地经营、利用和收益的权利)。土地公有制采取了两种形式:即集体所有制和国家所有制。a)农村土地采用了集体所有制,属于农民集体所有;b)城市土地采取国家所有制的形式,属于全民所有;任何个人不能取得土地的所有权。

  出让:从国家有偿取得使用权,方式:协议(如200-250万/亩)、招标(提出底价,根据使用用途和价格取得)、拍卖(价高者竟得,不违法的前提下,通过正规渠道取得);

  a、一级市场:以土地为体(亦称土地市场、土地交易市场);b、二级市场:开发商获得土地后,投入一定的奖金建设,通过有偿或赠与将产权转买给需求者(新建商品房的买卖市场);

  指国家以土地所有者身份,按指定地块的使用年限、用途和城市规划等条件,将城市土地使用权出让给土地使用者,并向土地使用者收取土地使用权出让金的行为。出让交易双方是国家和用地单位或个人。

  地上权:指以支付租金为代价在他人土地上建筑房屋的权利,它的实质就是土地使用权;地役权:指利用他人土地供自己使用的权利;

  租赁权:指土地使用权获得者在其有效使用期限内将土地租给他人使用以获取收益,承租人即取得该块土地的租赁权;

  开发商以市场地价取得土地使用权后进行开发建设,并经国土局批准在市场上流通的房地产,它是在获取房产证后,可自行转让、爱游戏AYX官方网站登录入口出租、继承、抵押、交换的固定资产爱游戏AYX体育

  五证:〈国有土地使用证〉、〈建设用地规划许可证〉、〈建设工程规划许可证〉、〈建设工程施工许可证〉、〈商品房预售许可证〉

  二书:〈质量保证书〉、〈使用说明书〉、两书可以作为商品房买卖合同的补充约定,并且是房地产开发企业在商品房交付使用时向购房人提供的对商品房住宅承担质量责任的法律文件和保证文件。

  指未能完成施工中途停建的楼盘。造成楼盘烂尾的原因主要有资金不足、设计、施工存在严重质量问题,非常建设等。

  17、楼花:指已经动工建造,但尚未建成的楼宇、房屋。即指图纸上的楼宇,处于建筑施工的最初阶段,离交房时间长,价格优惠,买了后又可转卖,赚差价。

  18、炒楼花:买卖尚未建筑好的房屋。(现在政府有规定,商品房5年内不许转让,交5%的营业税,为了控制炒房)

  19、期房:指具备预售条件,尚未竣工交付使用的商品房。(价格低、选择空间大、户型齐全、可监督建筑材料、质量)

  20、现房:指已经工程质量监督部门验收,并取得质量合格证明文件,可以交付使用的商品房。(即买即入住、价格高、户型过时、选择空间不大)

  21、经济适用房:指以微利价出售给广大中低收入家庭的商品房(带有社会保障性质的商品住宅,是有经济性和适用性)。不是人人可以买到,必须符合当地政府所规定的条件,经过排号购买。长沙房口,25岁以上,65㎡以内以经济价购买,65㎡以外以商品房价购买,5年后才能转卖)。

  22、二手房:办好产权证,进行再次转让的房屋。其他如:公房、私房、集资房、廉租房、安置房等福利房。

  23、诚意金:指商品房在未取得预售证之前,开发商收取客户的可退回的款项(一般可以获得开发商的折扣承诺)。

  24、定金:指当事人约定由一方向对方付给的作为债权人担保的一定数额的货币(能担保债权人的作用)不能返还。

  31、别墅:指在郊外或风景区建造的供休养,住宿用的花园住宅,TOWRHOUSE(联体别墅、单排别墅)。

  32、SHOPPINGMALL:一站式购物,集购物、娱乐、休闲为一体的这么一个商业区域,起源于美国(也称第六商业业态)。

  33、物业管理:指由专业公司或机构,接受业主(或使用人)的委托,对物业实话专业化管理,并向业主(或使用人)提供高效、周到服务的行为。

  34、物业管理内容:对房屋及其附属设备管理、维修;对房屋区域内的清洁卫生、安全保卫、公共绿化、公用设施、道路等实施管理;向业主提供其他综合性或特约的服务等。物业管理属社区管理范畴。

  37、业主委员会:由物业管理区域内业主代表组成,代表全体业主对物业实施自治管理的组织,由业主代表大会或业主代表选举产生。

  38、一次性付款:指购房户在购买商品房时,在没有享受政策性的情况下,将全部买房款一次性付给售房单位的付款方式。

  39、分期付款:购房者签约后,将购房款分成若干比例,按时间段或按施工进度分批交纳房款(针对期房),交房时,款项全部付清。

  40、银行按揭:指以购房合同或房屋产权作抵押获得购房的方式。即购房者在购房时,向银行提出担保的质押文件,在银行审核通过后,取得房屋总价的部分,依抵押约定,按期按时间段向银行偿还本息,并提供房地产作为偿还的担保(一般的购房合同和产权证作为抵押,住房:七成二十年;门面:五成十年或六年十年)。

  41、公积金:“全称住房公积金”,指城镇住房制度改革中,国家机关、国有企业、城镇集体企业、外商投资企业、城镇企业及其他城镇企事业单位及其在职职工按国家规定缴存的,专项用于住房消费的资金(门面不行)。缴存比例:均不得低于职工上一年度月平均工资的5%,有条件的城市,可以适当提高缴存比例;缴存方式:一是由职工个人缴存;二是由职工所在单位缴存;

  42、个人住房公积金:指参加了住房公积金制度的职工,在购买、建筑、翻建和大修自住住房时,因资金不足愿以新购或其他住房产权作抵押而向住房公积金管理中心申请的。

  43、契税:指房屋所有权发生变更时,就当事人所订契约,按房价的一定比例,向产权承受人征收的一次性税收(普通住宅:2%、非普通住宅:4%)。

  44、公共维修基金:指住宅、楼房的公共部位和公共设施设备的维修养护基金(普通住宅:2%;电梯房、门面:3%)。

  46、起价:即“起步价”是指物业所有房源中的最低销售价格(一般指户型、朝向、格局不好的楼房价格,各层的差价几十~几百元)。

  47、基价:即“基础价”指经过核算而确定的每平方米商品房的基本价格。是针对房地产定价方法而言的,与起步价没有关系(楼层、朝向不同价格也不同)。

  48、均价:即物业的平均销售价格,将本物业各套房子的销售价格相加之后的和除以各单位建筑面积的和数,即可得出每平方米的均价)。

  包括:A、征地和拆迁补偿费; B、勘察设计和前期工程费; C、建安工程费; D、住宅小区基础设施建设费;E、管理费; F、利息; G、税金;

  指商品房销售中应分摊计入销售面积的商品房中公共建筑空间的面积,由两部分组成:一)室内外楼梯、内外廊、公共门厅、通道、电梯、配电房、设备层、设备用房、结构转换层、技术层、空调机房、消防控制室、为整栋楼层服务的值班警卫室,建筑物内的垃圾房以及突出屋面有围护结构的楼梯间、电梯机房、水箱间等;二)套单元与公用建筑空间之间的分隔以及外墙(包括山墙)墙体水平投影面积。

  14、绿地率:所有住宅各类绿地面积与住宅总用地面积的比例。新区建设中不应低于30%,旧区改造时不宜低于25%(不包括屋顶、晒台的人工绿地)。

  它是一个精彩、特殊的、无处不销售、人人都使用、升值空间大、有趣、自由、有成就感、锻炼人,上不封顶收入的一个较灵活、广泛、综合性的一个行业。

  3)经验评估法:根据以往经验来测标,价格阻力位针对顾客来说,内容包括:均价、起价(作用,降低入市门槛、一般是低开高涨,只对于大型楼盘、而小规模楼

href=""

搜索